Calle Moratín

Descripción

Oportunidad de Inversión en el Corazón de Madrid

Se vende edificio residencial de 439 m² en pleno barrio de Huertas, junto al Paseo del Prado, Museo del Prado, Museo Caixa Forum y la estación de Atocha, una de las zonas más demandadas de Madrid tanto para alquiler como para turismo de alta gama.

Características principales:

  • Superficie construida: 439 m²
  • Plantas: 4 + bajo comercial + sótano
  • Año de construcción: 1991
  • ITE favorable: 2023
  • Orientación: Suroeste, con excelente luminosidad natural
  • Fachada: Ladrillo visto, impecable mantenimiento
  • Servicios: Ascensor, gas natural

Distribución:

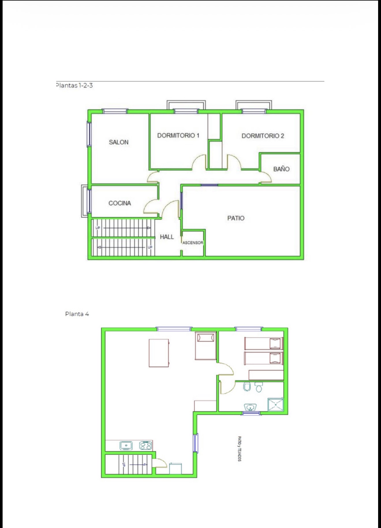
  • Local comercial en esquina: acceso desde la calle, dos plantas, ideal para rentabilidad inmediata.
  • 3 apartamentos de 2 dormitorios: exteriores, con balcones, salón-comedor con miradores en esquina, cocina independiente y baño con ventana a patio.
  • 1 buhardilla: 1 dormitorio, cocina americana y baño, perfecta para alquiler de corta o larga estancia.
  • Todos los inmuebles cuentan con aire acondicionado y acabados de calidad.

Gastos y mantenimiento:

  • IBI: 3.200 €
  • Tasa de residuos: 500 €
  • Sin derramas pendientes

Ventajas para el inversor:

  • Ubicación privilegiada en el centro cultural y turístico de Madrid
  • Edificio con varias líneas de ingresos posibles: alquiler residencial y comercial
  • Propiedad lista para entrar a rentabilizar inmediatamente
  • Finca bien mantenida con ascensor y servicios modernos

Este edificio representa una oportunidad única de inversión en una de las zonas más codiciadas de Madrid, con alta demanda de alquiler y potencial de revalorización a medio-largo plazo.

Detalles

  • Referencia: Mora26
  • Año de construcción: 1991
  • Tipo: Edificio
  • Vendida: No
  • Contrato: Venta
  • Estado: Venta
  • Localización: Las Cortes
  • Área de la casa: 439 m2

Servicios

  • Aerotermia
  • Aire acondicionado
  • Alarma
  • Almacén
  • Armarios empotrados
  • Ascensor
  • Balcón
  • Barbacoa
  • Bodega
  • Buhardilla
  • Calefacción
  • Chimenea
  • Cocina amueblada
  • Conserje
  • Discoteca
  • Garaje
  • Garaje doble
  • Garaje triple
  • Gas ciudad
  • Jacuzzi
  • Jardín
  • Luminosa
  • Muebles
  • Padel
  • Parcela
  • Patio
  • Piscina
  • Piscina interior climatizada
  • Piscina propia
  • Piso exterior
  • Piso interior
  • Pista de squash
  • Pista de tenis
  • Puerta Automatica
  • Puerta blindada
  • Sala de cine
  • Salida de humos
  • Sauna
  • Suelo de gres
  • Suelo granito
  • Suelo mármol
  • Suelo porcelanico
  • Tarima
  • Tendedero
  • Terraza
  • Tiene oficina
  • Trastero
  • Video portero
  • Zonas comunes

Planos

Propiedades similares

11 Bedrooms
15 Bathrooms
1 Garage
Valor Patrimonial
Casa
30 Bedrooms
6 Bathrooms
20 Garages
Valor Patrimonial
Edificio